Empfohlen
359.000,00 €
- Immobilien Nr.: HP-2026-542
- Typ: Doppelhaushälfte
- Zimmer: 4
- Wohnfläche: 100 m²
- Grundfläche: 230 m²
- Baujahr: 2026
- Preis: 359.000,00 €
Beschreibung
Neubau-DHH in Zentrumslage Ihlowerfehn – modern & naturnah
Die moderne Doppelhaushälfte überzeugt durch ihre klare Architektur, eine hochwertige Klinkerfassade und ein durchdachtes Raumkonzept, das sowohl funktional als auch wohnlich gestaltet ist. Großzügige Fensterflächen sorgen in allen Bereichen für viel Tageslicht und schaffen eine helle, angenehme Wohnatmosphäre. Ergänzt wird das Konzept durch eine energieeffiziente Bauweise.
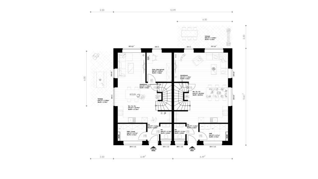
Im Erdgeschoss bildet der offen gestaltete Wohn-, Ess- und Küchenbereich mit rund 40 m² das Herzstück des Hauses. Von hier aus besteht ein direkter Zugang zur Terrasse und in den privaten Garten, wodurch Innen- und Außenbereich harmonisch miteinander verbunden werden. Ergänzt wird diese Ebene durch ein flexibel nutzbares Gäste- oder Arbeitszimmer, ein Gäste-WC, einen Hauswirtschaftsraum sowie einen einladenden Eingangsbereich mit Flur.
Das Obergeschoss bietet ideale Voraussetzungen für das Familienleben. Hier befinden sich ein großzügiges Elternschlafzimmer mit angrenzender Ankleide, zwei gut geschnittene Kinderzimmer sowie ein modernes Badezimmer. Ein zentral angeordneter Flur mit Treppenaufgang verbindet alle Räume effizient und schafft kurze Wege.
Besonderer Vorteil dieses Neubauprojekts ist die Flexibilität in der Grundrissgestaltung: Die Raumaufteilung kann – je nach Baufortschritt – noch an individuelle Wünsche und Bedürfnisse angepasst werden. So lassen sich beispielsweise Räume anders aufteilen, vergrößern oder in ihrer Nutzung variieren, um ein ganz persönliches Zuhause zu schaffen.
Insgesamt vereint diese Doppelhaushälfte moderne Architektur, hochwertige Ausstattung und flexible Gestaltungsmöglichkeiten zu einem attraktiven Wohnkonzept für Familien und anspruchsvolle Eigennutzer.
Baustart Mai 2026 Fertigstellung Mai 2027
Ausstattung
Die Doppelhaushälfte enthält folgende Ausstattung:
– hohe Dämmung der Gebäudehülle (KFW55)
– qualitativ hochwertige Luftwärmepumpe (Daikin)
– Dezentrale Lüftungsanlage mit Wärmerückgewinnung
– Anthrazite Kunstofffenster mit 3-Fach-Isolierverglasung
– elektrische Außenjalousien
– Fußbodenheizung mit einzelnen Raumthermostaten
– Hochwertige Betontreppe zum Obergeschoss
– Hausanschlüsse
– Photovoltaikanlage
– Vorbereitung Wallbox
– Sackgassenendlage
– KFW förderfähig, Zinssatz ab 0,95%
Mögliche Finanzierungsrate 1.441,59€ mtl.
Eine detaillierte Baubeschreibung lassen wir Ihnen gerne auf Wunsch zukommen.
Sie können den Grundriss nach ihren eigenen Wünschen gestalten.
Haben Sie noch einen individuellen Wunsch, der ihre Doppelhaushälfte perfekt machen soll? Sprechen Sie uns gerne an!
Lage
Die Doppelhaushälfte entsteht in einem attraktiven, kleinen Neubaugebiet im direkten Zentrum von Ihlowerfehn und verbindet eine zentrale Lage mit einer angenehmen, gewachsenen Umgebung. Alle Einrichtungen des täglichen Bedarfs wie Einkaufsmöglichkeiten, Schulen, Kindergärten, Ärzte und Freizeitangebote befinden sich in unmittelbarer Nähe und sind bequem erreichbar.
Das Haus wird am Ende einer Sackgasse errichtet, wodurch sich eine besonders angenehme Wohnsituation mit einem hohen Maß an Privatsphäre ergibt. Die Lage innerhalb des Wohngebiets sorgt für ein harmonisches Nachbarschaftsbild.
Ein besonderes Highlight ist die Umgebung des Grundstücks: Direkt hinter dem Haus befindet sich ein Rückhaltebecken, das einen freien, unverbaubaren Blick ins Grüne ermöglicht. Zusätzlich grenzt in unmittelbarer Nähe der weitläufige Ihlower Wald an das Baugebiet und bietet vielfältige Möglichkeiten für Spaziergänge, Sport und Erholung. Auch das Ihler Meer ist fußläufig erreichbar und erweitert das Freizeitangebot um eine attraktive Wasser- und Naturlandschaft.
Die Kombination aus zentraler Infrastruktur, naturnaher Umgebung und der besonderen Lage innerhalb des Baugebiets macht diesen Standort besonders attraktiv.
Sonstiges
GELDWÄSCHE: Als Immobilienmaklerunternehmen ist die von Haus und Projekt GmbH nach § 2 Abs. 1 Nr. 14 und § 11 Abs. 1, 2 Geldwäschegesetz (GwG) dazu verpflichtet, bei der Begründung einer Geschäftsbeziehung die Identität des Vertragspartners festzustellen und zu überprüfen, bzw. sobald ein ernsthaftes Interesse an der Durchführung des Immobilienkaufvertrages besteht. Hierzu ist es erforderlich, dass wir nach § 11 Abs. 4 GwG die relevanten Daten Ihres Personalausweises festhalten (wenn Sie als natürliche Person handeln) – beispielsweise mittels einer Kopie. Bei einer juristischen Person benötigen wir eine Kopie des Handelsregisterauszugs, aus welchem der wirtschaftlich Berechtigte hervorgeht. Das Geldwäschegesetz sieht vor, dass der Makler die Kopien bzw. Unterlagen fünf Jahre aufbewahren muss. Als unser Vertragspartner haben Sie auch eine Mitwirkungspflicht nach § 11 Abs. 6 GwG.





